- サンルームが彩る新しい暮らし。人が集う、夫婦のこだわり空間へ。
- H様邸
- エリア:東広島市
- 家族構成:ご夫婦2人
- リフォーム内容:1階 全面リフォーム
DESCRIPTION
同居していたお父さまの他界をきっかけに、ご夫婦二人で住まわれる家のリフォームを決断された東広島市のH様。以前から気になっていたというLIFE & CULTURE MARKET L/C(住宅・リフォームショールーム&インテリアショップ)を訪れ、リフォームのご相談をいただきました。 今回のリフォームでは、特に水まわりにこだわり、中でも洗面台は特にお気に入りのポイントになったとのこと。LDKは天井を含めた全体のカラーコーディネートを重視されています。サンルームを新たに設置し、「斬新な印象になった」とお喜びです。リフォームを経て、「全体的に広くなった気がします」と空間の広がりも感じていらっしゃいます。 お気に入りの場所はリビングと、新たに追加されたサンルーム。住まいづくりを振り返り、「リフォームが始まると追加の要望が出てきて不安もありましたが、早い段階でお願いしてよかったと思います」と語るH様。「これからは、この家に知り合いをたくさん呼びたい」と、新しい住まいで過ごす未来への期待も膨らみます。ご夫婦のこだわりが詰まった住まいが完成し、ご満足の声をいただきました。
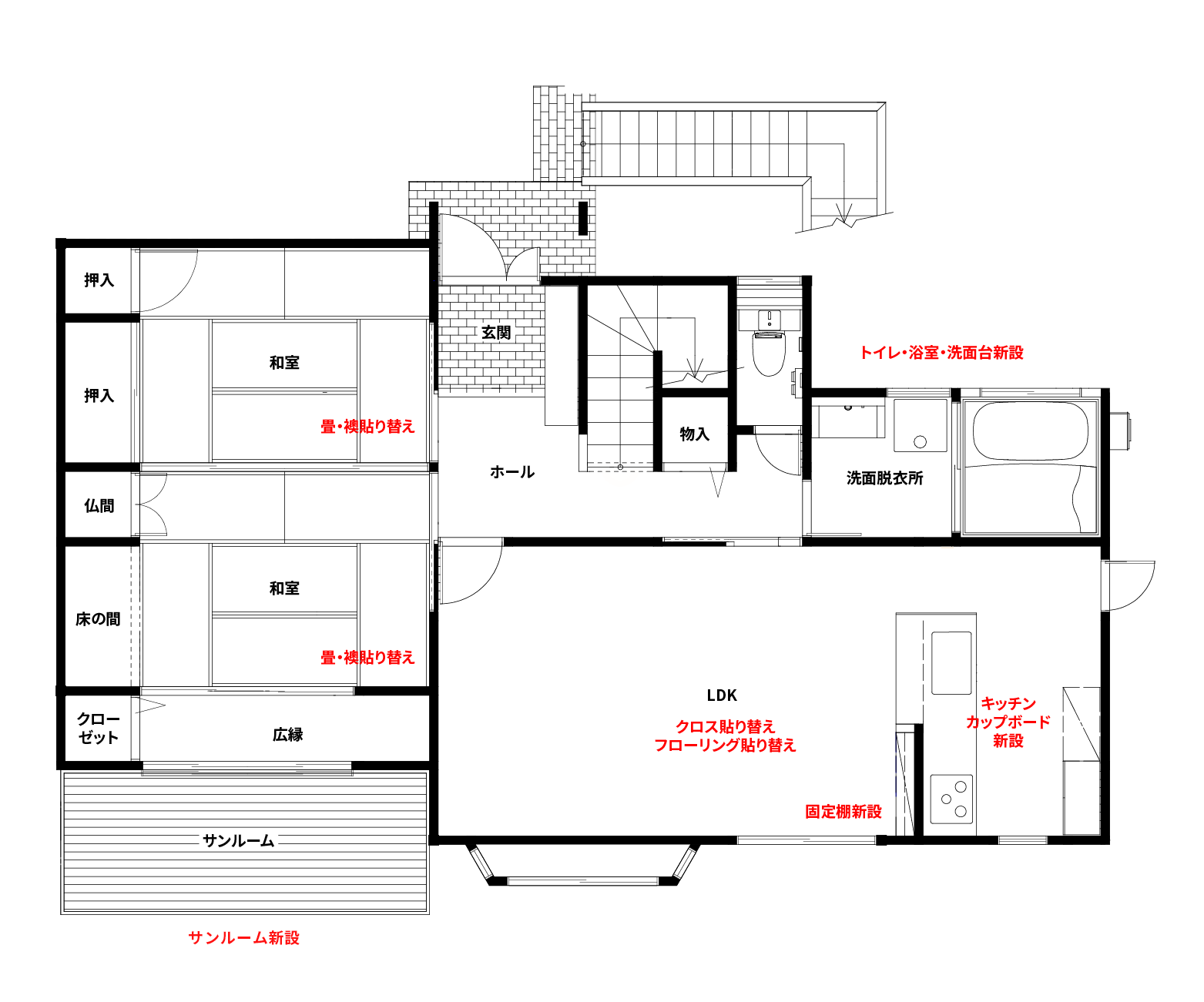
BEFORE
- 1F
 
AFTER
- 1F
 


LDK
天井まで含めた全体のカラーコーディネートにこだわったLDK。統一感のある色彩が落ち着いた雰囲気を生み出し、空間の広がりも感じられます。サンルームへと続く、光あふれる空間は、ご夫婦のお気に入りの場所になりました。

キッチン
水まわりの中でも特に注力されたキッチン。ご夫婦二人が並んでも作業しやすい、すっきりと使いやすい空間へと生まれ変わりました。デザイン性も高まり、毎日のお料理が楽しくなりそうです。

洗面台
水まわりの中でもお気に入りポイントの洗面台。人気のアイカ工業スマートサニタリーを採用。グレーの造作洗面のようなオシャレなデザインに、照明も合わせてコーディネートしました。

収納
ダイニング近くの壁面一面に設けた収納は、LDKのアクセントにもなるデザイン。お気に入りの雑貨や書籍を飾るオープン棚として、インテリアと機能性を両立し、個性を表現できる空間に。


サンルーム
新たに追加されたサンルーム。明るい光が差し込む心地よい空間は、ご夫婦のお気に入りの場所に。リモートワークスペースやティータイム、ゲストとの語らいなどサッシを開放して、多目的に使える憩いのスペースです。
オーダーメイドの
リフォーム事例
                戸建やマンション、古民家再生、DIY風、二世帯など、
注文住宅のノウハウを活かした、デザイン性の高い事例をご紹介。



 
                                                                             
                                                                             
                                                                             
                                                                             
                                                                             
                                                                            


